KAMENNÁ PRODEJNA
Dukelská třída 40/13
614 00 Brno - Husovice
+420 549 210 449
info@novelobrno.cz
| Kód produktu: | NA020965 |
|---|---|
| Výrobce: | T - SAFE s.r.o. |
Přeprava pouze nadrozměrnou dopravou!
• Jednokřídlé certifikované dveře v bezpečnostní třídě 1 určené především pro bezpečné zajištění objektů a místností.
• Součástí jsou i zárubně v provedení k zazdění (za příplatek k ukotvení ocelovými šrouby).
• Trezorové dveře jsou vybaveny mechanickým kombinačním zámkem s třístranným rozvorovým mechanismem ovládaným klikou.
• Na přání možnost oboustranného otevírání, nouzového otevírání a zamykání zevnitř.
• Dveře lze vyrobit i v bezpečnostní třídě III.
• Barevné provedení: RAL 9002 (šedobílá) nebo RAL 9005 (černá).
• Certifikát dle normy ČSN EN 1143-1+A1 pro bezpečnostní třídu I.
• Certifikát NBÚ ověřující způsobilost technického prostředku typu 3 (TAJNÉ).
• Trezorové dveře lze vyrobit v provedení splňující požadavky ČSN EN 1522 a ČSN EN 1523 pro zařazení do třídy balistické odolnosti FB4.
|
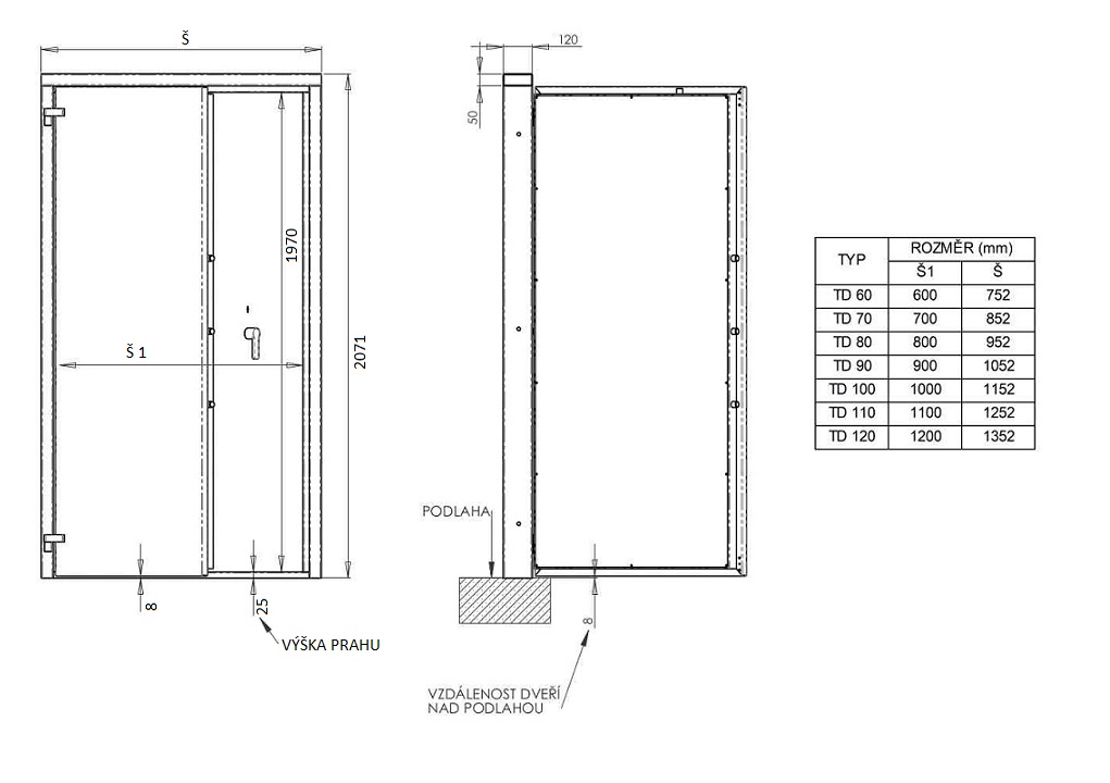
Hmotnost
180 kg
|
|
Výška
2065 mm
|
|
Šířka
840 mm
|
|
Hloubka
150 mm
|
|
Výška - vnitřní rozměr
1970 mm
|
|
Šířka - vnitřní rozměr
700 mm
|
|
Hloubka - vnitřní rozměr
150 mm
|
|
Bezpečnostní třída
1
|
|
Značka
T-Safe
|
© Servisní partner FAB Brno, Novelo 91 s.r.o.